Project Drawing Samples & Downloads

Dive into our library of professional-grade steel detailing and fabrication samples. Whether you’re a client, contractor, or fellow engineer, these downloadable files provide insight into the precision, clarity, and structure we deliver in every project.

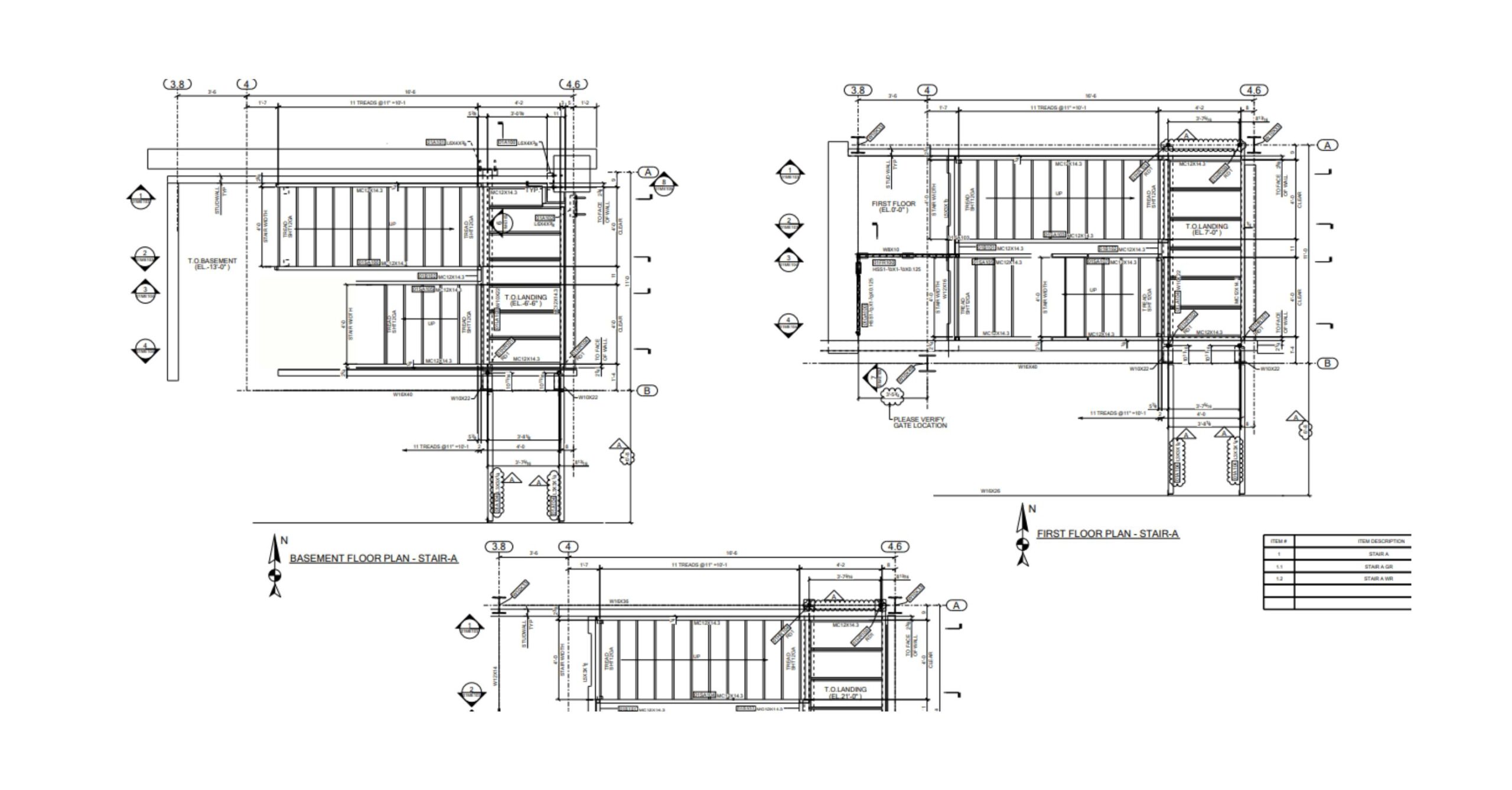
3D Structural Modeling Excellence

Take a look at one of our fully detailed 3D structural models — crafted with precision using industry-standard software like Tekla Structures.